• info

    Architecture:

    Miguel Cayuelas

     

    Rendering:

    Luisa Barbudo Morales

     

    Location: Almeria, Spain

    Client: Ayuntamiento de Almeria

    Year: April 2018

    Type: Public. Extension

    Surface: 2500 m2

    Budget: 6.5 Mio

    Status: Competition

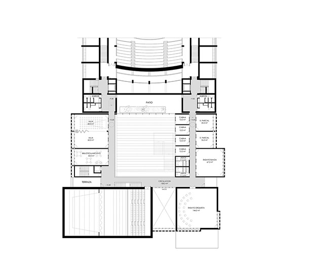
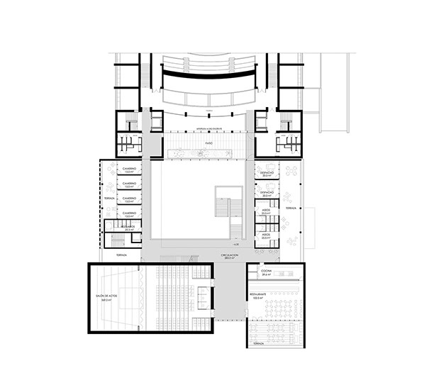
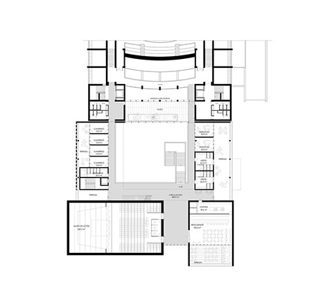
Auditorium extension Almería

Almería, Spain. Competition