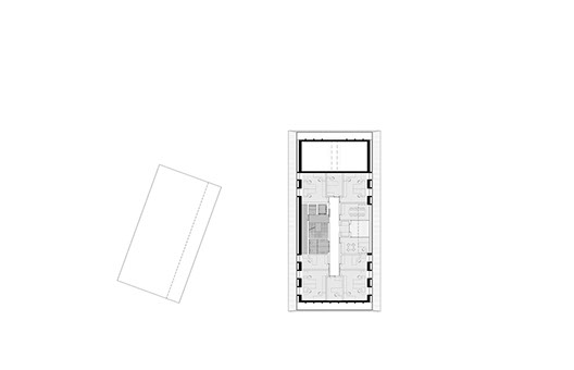
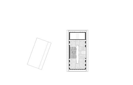
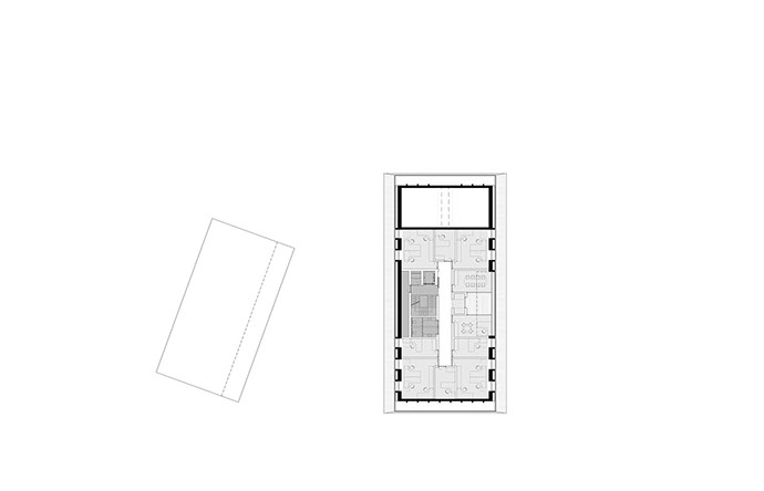
• info

    Architecture:

    Miguel Cayuelas & Julian Calvo

     

    Landscape:

    Alsina-Fernandez. Zürich

     

    Location: Lindau, Switzerland

    Client: Gemeinde Lindau

    Year: April 2022

    Type: Public. Town hall

    Surface: 2300 m2

    Budget: 10 Mio

    Status: Competition

Town hall in Lindau

Zürich, Switzerland. Competition