• info

    Architecture:

    Miguel Cayuelas & Julian Calvo

     

    Landscape:

    Etablissement. Paris

     

    Rendering:

    Julia Bogdan. JB Visual

     

    Location: Pfaffnau, Switzerland

    Client: Gemeinde Pfaffnau

    Year: November 2021

    Type: Public. Town hall

    Surface: 2900 m2

    Budget: 5 Mio

    Status: Competition

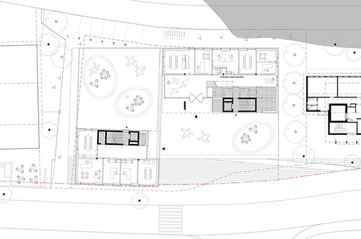
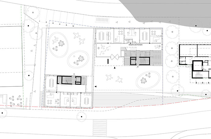
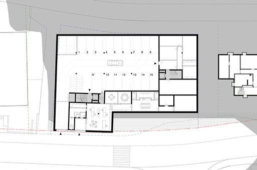
Town hall in Pfaffnau

Luzern, Switzerland. Competition