• info

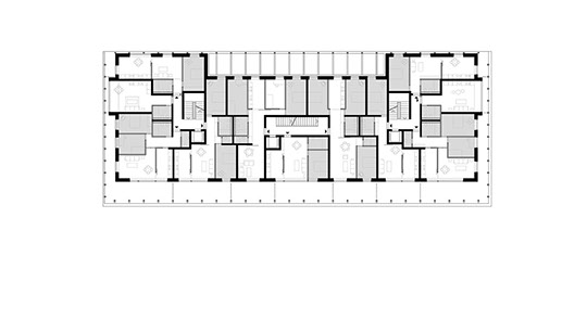
    Architecture: Miguel Cayuelas & Julian Calvo Location: Geneve, Switzerland Client: Fondation HBM Emma Kammacher Year: April 2021 Type: Housing Surface: 5500 m2 Budget: 19 Mio Status: Competition

Housing Le Rolliet

Geneve, Switzerland. Competition

  • Architecture: Miguel Cayuelas & Julian Calvo Location: Geneve, Switzerland Client: Fondation HBM Emma Kammacher Year: April 2021 Type: Housing Surface: 5500 m2 Budget: 19 Mio Status: Competition
  • Architecture: Miguel Cayuelas & Julian Calvo Location: Geneve, Switzerland Client: Fondation HBM Emma Kammacher Year: April 2021 Type: Housing Surface: 5500 m2 Budget: 19 Mio Status: Competition
  • Architecture: Miguel Cayuelas & Julian Calvo Location: Geneve, Switzerland Client: Fondation HBM Emma Kammacher Year: April 2021 Type: Housing Surface: 5500 m2 Budget: 19 Mio Status: Competition
  • Architecture:

    Miguel Cayuelas & Julian Calvo

     

     

    Location: Geneve, Switzerland

    Client: Fondation HBM Emma Kammacher

    Year: April 2021

    Type: Housing

    Surface: 5500 m2

    Budget: 19 Mio

    Status: Competition