


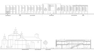
Architecture:
Miguel Cayuelas & Antonio Torres
Consulting:
Cristina Sanabria
Location: Villanueva de la Serena, Spain
Client: Diputación provincial de Badajoz
Year: September 2019
Type: Public, Market
Surface: 2400 m2
Budget: 1.9 Mio
Status: Competition