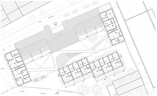
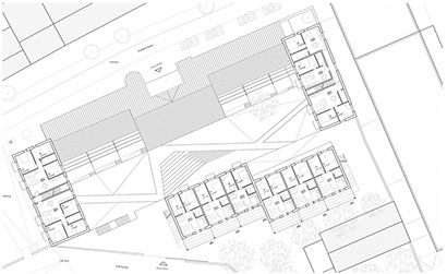
• info

    Architecture:

    Miguel Cayuelas & Luisa Barbudo Morales

     

     

    Location: Aracena, Huelva, Spain

    Client: Ayuntamiento de Aracena

    Year: January 2020

    Type: Housing

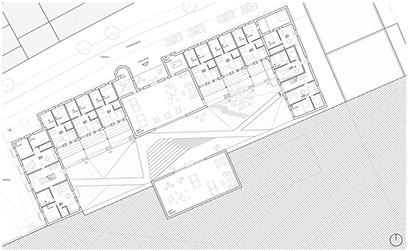
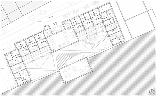
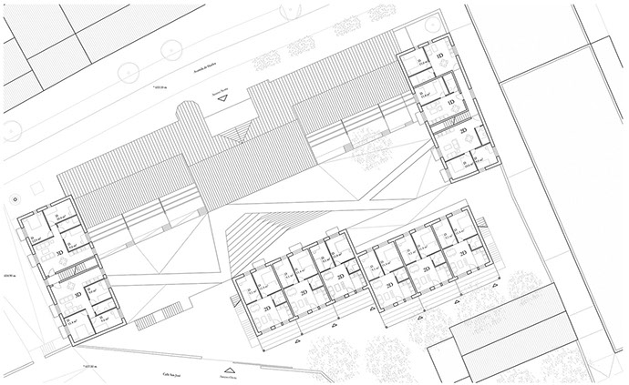
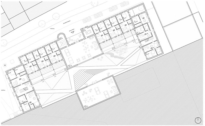
    Surface: 1200 m2

    Budget: 1.2 Mio

    Status: Competition

Social housing Aracena

Aracena, Spain. Competition